売中古戸建 伊豆市牧之郷

【外観】の画像

【外観】 百年住宅の注文住宅です。耐震性能・耐火性能に優れています。安心して生活いただけると思います。高断熱性能で高気密・遮音性が高くなっています。耐久性能も高く初期保証が35年ついています。

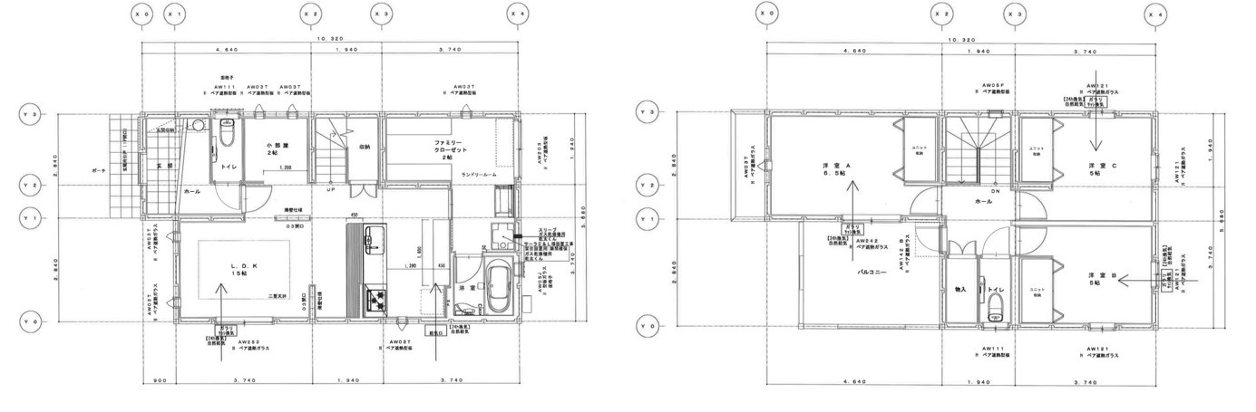
【間取り】の画像

【間取り】 1階はLDKと水廻りに小さなお部屋、2階に3部屋、という間取りとなっております。

【キッチン】の画像

【キッチン】 カウンターキッチンなので会話をしながら楽しくお料理出来そうですね。調理スペースが広いのでお料理もはかどります。

【居間・リビング】の画像

【居間・リビング】 大きい窓があるので明るい空間でのびのびと生活できます。家族が自然に集まるような広さのリビングです。

【居間・リビング】の画像

【居間・リビング】 窓も多く明るいので家族団欒の楽しい時間が過ごせそうですね。

【トイレ】の画像

【トイレ】 トイレには窓があり明るい室内です。手摺がありバリアフリーになっています。

【】の画像

【】 ランドリースペースがあるので雨の日でも安心してお洗濯が出来ます。独立洗面台があるので収納スペースも多くあります。鏡もあるので朝の支度にも便利です。

【浴室】の画像

【浴室】 シンプルで使い勝手の良いお風呂です。ブラックのタイルがアクセントになっています。

【洋室】の画像

【洋室】 荷物が多くても収納スペースがたっぷりあるので、生活スペースを広く確保する事ができます。

【外観】の画像 外観
【間取り】の画像 間取り
【キッチン】の画像 キッチン
【居間・リビング】の画像 居間・リビング
【居間・リビング】の画像 居間・リビング
【トイレ】の画像 トイレ
【】の画像
【浴室】の画像 浴室
【洋室】の画像 洋室

中古一戸建

価格
3,680万円 支払いシミュレーション
所在地
静岡県伊豆市牧之郷 MAP
交通
伊豆箱根鉄道駿豆線「牧之郷」駅徒歩11分
間取り
4LDK
建物面積(坪数)
101.05㎡ (30.56坪)
土地面積(坪数)
公簿 : 165.03㎡ (49.92坪)
築年月(築年数)
2022年 12月 (築2年)

まずはご相談ください!

055-928-7115

営業時間
9:30~18:30
定休日
火曜日・水曜日

担当者スタッフより

おすすめポイント

百年住宅の注文住宅です。耐震性能・耐火性能に優れています。高断熱性能で高気密・遮音性が高くなっています。耐久性能も高く初期保証が35年ついています。安心して生活いただけると思います。
築2年の築浅物件なのでとても綺麗です。
角地なので陽当たり良好で解放感があります。南側が道路に接しているので陽当たり良好です。
伊豆箱根鉄道・牧之郷駅まで徒歩6分です。国道414号線まで車で3分です。

百年住宅の注文住宅です。
耐震性能・耐火性能に優れています。
安心して生活いただけると思います。
高断熱性能で高気密・遮音性が高くなっています。
耐久性能も高く初期保証が35年ついています。

築2年の築浅物件なので室内とても綺麗です。
手入れも行き届いており、気持ちよく住み始めていただけます。

角地なので陽当たり良好で解放感があります。
南側が道路に接しているので陽当たり良好です。

伊豆箱根鉄道・牧之郷駅まで徒歩6分です。
通学に便利です。

国道414号線まで車で3分です。
通り沿いには飲食店が多数あります。
市街地までのアクセス良好です。

近くにドラッグストアがあり急に発熱した際の応急処置も安心です。

是非お気軽にお問い合わせください。専門スタッフが親切丁寧に対応いたします。

まずはご相談ください!

営業時間
9:30~18:30
定休日
火曜日・水曜日

物件概要

物件番号:78606744 /  情報更新日:2025年11月07日 /  更新予定日:2025年11月21日 /  取引条件の有効期限:2025年11月21日 情報の見方
価格 3,680万円 支払いシミュレーション 所在地 静岡県伊豆市牧之郷 MAP
交通 伊豆箱根鉄道駿豆線「牧之郷」駅徒歩11分
伊豆箱根鉄道駿豆線「大仁」駅徒歩26分
伊豆箱根鉄道駿豆線「修善寺」駅徒歩25分
間取り(詳細) 4LDK LDK 15.0帖 1室/その他 2.0帖 1室/洋室 5.0帖 2室/洋室 6.5帖 1室
建物面積(坪数) 101.05㎡(30.56坪) 土地面積(坪数) 公簿 : 165.03㎡(49.92坪)
土地権利 所有権 築年月(築年数) 2022年 12月 (築2年)
階建て / 建物構造 2階建て / プレキャストコンクリート 向き -
地目 / 地勢 宅地 / - 傾斜地部分面積 /
路地状敷地
- / -
接道状況 一方(南 公道 6.0m)(西 私道 4.0m) 建ぺい率 / 容積率 60% / 200%
用途地域 無指定 都市計画 非線引区域
駐車場 / 月額料金 - / - 土地の敷金 / 保証金 -
借地料 / 借地期間 - / - 私道負担面積 /
セットバック
- / -
現況 / 引渡時期 居住中 / 相談 取引態様 専属専任媒介
建築確認番号 第第2022確認建築静建住ま05392号 国土法届出要否 不要
法令上の制限 高さ最高限度有/幹線道路沿道地区 高さ制限12M以下 販売区画数 / 総区画数 - / -
設備条件
  • 現地見学会
  • 室内洗濯機置場
  • バルコニー
  • プロパンガス
  • 公営水道
  • 公共下水
  • 電気有
備考 市場全ての物件からベストと思える物件を探せます。
物件の選び方、住宅ローンの注意点など疑問にもお答えします。
専門スタッフが親切丁寧に対応いたします。

◇◆お気軽にお問合せ下さい◆◇
TEL:055-928-7115
MALL:mishima_info@u2japan.world

地図

※地図上に表示される物件の位置は付近住所に所在することを表すものであり、実際の物件所在地とは異なる場合がございます。

まずはご相談ください!

営業時間
9:30~18:30
定休日
火曜日・水曜日

取り扱い店舗(U2JAPAN株式会社 三島店)

U2JAPAN株式会社 三島店の画像

所在地
静岡県三島市青木97 
電話番号
055-928-7115
営業時間
9:30~18:30
定休日
火曜日・水曜日

支払いシミュレーションこの物件を購入した場合の、月々の支払い価格の一例です。借り入れを保証するものではございません。

返済期間
金利
ボーナス時の増額(1回分)
借入金額
頭金

※元利均等方式金利5.00%まで※返済年数5~50年まで入力できます

※ボーナスは年2回で計算しています。1000万円まで入力できます

毎月の返済額

まずはご相談ください!

営業時間
9:30~18:30
定休日
火曜日・水曜日

売却査定

お問い合わせ